Планировки

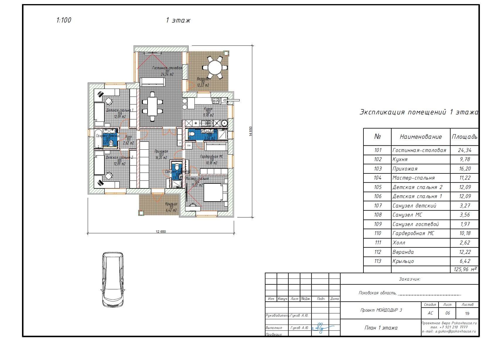
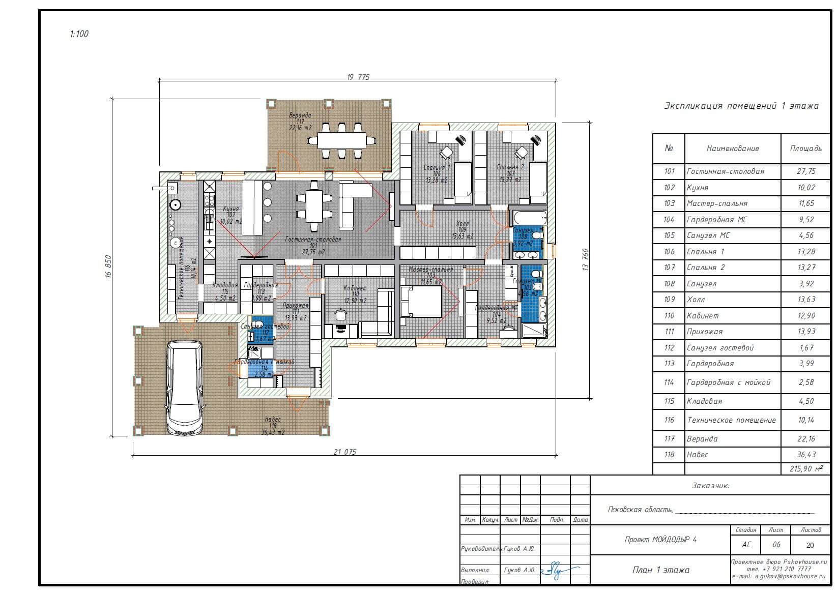
Планировка – это структура расположения помещений здания, отвечающая сценариям проживания жильцов. Представления о сценариях проживания могут быть разными и меняться с течением времени и обстоятельств. Поэтому универсальных планировок не существует. Готовые планировочные решения имеют логику, которую предусмотрел архитектор. Степень предусмотренности определяется, в первую очередь, расстановкой мебели, сантехприборов, оборудования, без которых планировка становится бессмысленной. Во-вторую очередь, планировка может как сэкономить Ваши деньги, так и привести к лишним затратам. Связь между площадью дома и его стоимостью логична, и чем больше Ваш дом, тем он дороже. В большинстве случаев планировочные решения являются компромиссом между приоритетными потребностями и финансовыми возможностями. Попробуем определится с приоритетами. Этажность дома. Сейчас в тренде одноэтажные дома. Доводы такого тренда просты – нет лестницы, которая требует места (вроде экономия), безбарьерное пространство, что тоже удобно. Но в одноэтажном доме на метр проекции этажа приходится метр проекции фундамента, потолка и кровли (метр условно, ведь у скатной кровли чаще всего делают свесы). Существует условная граница площади экономической целесообразности одноэтажника, при превышении которой удельная стоимость метра по полу становится больше стоимости метра по полу в двухэтажнике, у которого на каждый этаж приходится половина стоимости фундамента, кровли, межэтажного перекрытия и лестницы. Из нашего опыта эта граница лежит в диапазоне 120-160 м.кв. по полу. Планировка одноэтажников может зонироваться на приватную (спальни и санузлы, гардеробные при них) и публичную (гостиная, кухня, прихожая и т.п.) зоны, так и не зонироваться – так называемые «скандинавские» («финские» и пр.) планировки, в которых чаще всего пространство кухни-гостинной является распределительным помещением для спален. Это достаточно спорное решение, сторонников которого в России не так много (крупные застройщики в малоэтажке от таких планировочных решений отказываются). В двухэтажном доме с зонированием проще – первый этаж публичный, второй приватный.   Персонализация планировки. Под этим термином подразумевается приватность спален и мест гигиены. Застройщиков с квартирными стереотипами всё меньше (навроде, «в квартире с одним санузлом обходились…»). Сейчас уже никого не удивишь мастер-спальней. У популярного Good Wood это уже давно планировочный тренд. Необходимость гостевого санузла при входе тоже уже не вызывает возражений. Но вот вопрос, а сколько санузлов всего делать и какие? Основатель выставки Open Village, которая как раз и показывает вектор развития малоэтажки в России, Владислав Николаевич Капица, говорит, что современный тренд количества санузлов – на один больше, чем количество спален, при каждой спальне, плюс гостевой. Более умеренную точку зрения выражает другой лидер общественного мнения в этой области архитектор Виталий Злобин – количество санузлов для дома повышенного комфорта должно равняться количеству спален. А если к такому подходу ещё добавить индивидуальную раковину для каждого обитателя, в мастер-спальне две, и в детском санузле (при двух детских спальнях) две (своё мыло, полотенце и т.п.) то по степени персонализации будет точно зачет.   Мастер-спальня. Упрощенно – это небольшой блок помещений в доме, включающий спальню хозяев. Достоинства этого решения – приватность по звукоизоляции, гигиене, мест хранений. Наиболее комфортная мастер-спальня – так называемый сьюит, по аналогии с гостиничными номерами. При этом в самой спальне мест хранения почти нет (прикроватные тумбы, комоды не в счет). Такое решение позволяет одному из супругов не мешать спать второму гигиеническими процедурами и сборами по утрам и подготовкой ко сну вечером. Иногда в сьиюте в помещении гардеробной располагают мягкую мебель, и тогда уже мастер-спальня становится отдельной квартирой в частном доме, со своей прихожей-студией-гардеробной, отдельным санузлом и приватной спальней.   Помещения гардеробных. Удобство пользования местами хранения – фактор комфорта жизни в частном доме. Главное условие – мест хранения должно быть достаточно. Должны быть как места хранения индивидуального пользования, так и общедоступные. При этом ресурс экономии (сокращения метража) – замена помещений гардеробных на шкафы (шкафы-купе). В этом случае доступ к шкафам осуществляется с транзитных территорий (проходов).   Технические помещения. Технические помещения это топочные, помещения для инженерного оборудования, постирочные и т.п. Рассмотрим способы оптимизации на примере газоснабжения. Например, в доме отдельная топочная, и на кухне газовая плита. Что это значит? То, что на фасаде будет висеть желтый ящик и от него в помещение топочной будет проложена газовая труба, к которой уже гибкой подводкой присоединится котел. А ещё в каждом помещении с газовым оборудованием должна быть вытяжка естественной вентиляции (рудимент, но никуда не денешься). На кухню тоже надо проложить трассу газопровода, но внутри помещения нельзя. Остаётся по фасаду здания, что не делает его красивее. И в кухне тоже должен быть канал естественной вентиляции. А можно сделать иначе. Рядом с газовой плитой (или высоким шкафом с духовкой) расположить ещё один высокий шкаф, в который поместить газовый котел. Разумеется, стена, к которой примыкает этот шкаф должна быть наружной. И тогда всё упрощается. В этом же шкафу к газовой трубе приваривается тройник, и присоединяется газовая плита и духовка. А ещё вентканал естественной вентиляции надо будет делать только один. Фактически этот канал естественной вентиляции в одноэтажном доме в теплое время года никакой вентиляции осуществлять не будет, т.к. не создаётся достаточного разрежения вследствие малой разнице в плотности воздуха или вообще её полного отсутствия. Поэтому опять же в целях оптимизации можно на оголовке этого канала установить вентилятор Vilpe (Е190Р, Е190Есо, Е120S), который постоянно будет работать на низких оборотах, а по требованию (при приготовлении пищи) на высоких, и к этому каналу присоединить кухонный зонтик с жироуловителем. Тогда ещё и от кухонного зонтика шума не будет. Для совмещённой кухни-столовой это актуально. Vilpe продвигает эти продукты под девизом «тихая кухня». Другой пример – стиральная машина. Какое бельё чаще всего требует стирки? Не верхняя одежда. А та, которая контактирует с человеческим телом. Это нижнее бельё и постельное бельё, то есть то, что снимают в спальне. Соответственно, чем короче путь от спален до стиралки, тем удобнее. Можно расположить стиралку с сушилкой в гардеробной мастер-спальни, к стене, не смежной со спальней. Также и шкаф для белья, небольшая вешалка, гладильная доска в гардеробной мастер-спальни хозяйке не сильно помешает. А можно расположить в шкафу в холле. Там же рядом расположить шкаф для уже чистого белья и корзину в нем для грязного. Это тоже поможет уменьшить метраж дома, и его стоимость. А куда спрятать инженерное оборудование? Бойлер косвенного нагрева, гребенки отопления, водоподготовку. А туда же. В шкаф. Часто ли эти агрегаты требуют обслуживания? Нет. А доступ к ним должен быть удобным? Да. В шкафах всё это есть. Иногда только пол придется протереть в шкафу и перед ним. На первый взгляд это звучит радикально вызывающе. Но такие решения уже давно практикует, например, компания Оптимум Хаус.   А теперь примеры. Для сравнения подходов к оптимизации планировки приведу два наших проекта. Оба проекта для семьи из четырех человек соответствуют вышеизложенным приоритетам. Более того, они имеют практически одинаковую площадь детских спален и достаточно комфортную мастер-спальню приближенную к формату сьюита. Количество санузлов равно количеству комнат, поэтому проекты называются Мойдодыр 3 и Мойдодыр 4. Количество умывальников равно количеству жильцов. В одном доме есть открытый навес под автомобиль, в другом он не предусмотрен. Без учета навеса площади домов отличаются в полтора раза. Как так? Давайте посмотрим Помимо навеса добавлены отдельные помещения кабинета при входе, техническое помещение с дверью, выходящей в навес, кладовая при кухне, дополнительная гардеробная, небольшой санузел-сушилка при входе с т.н. «лапомойкой», которая необходима и для человеческих конечностей, когда при доме есть какое-то хозяйство. Также появился хороший холл в приватной части дома с ещё одним шкафом-купе, да и сердце дома – место общения – кухня-столовая-гостиная получилось респектабельнее.   Напомню – площади домов без учета навеса отличаются в полтора раза. Это разные форматы домов. Дом Мойдодыр 3 ближе к формату т.н. «флэт-хауса», дома с планировкой, приближенной к квартире. Из очевидных достоинств именно этого проекта – полное отсутствие транзитных холлов. Прихожая является тем помещением, которое связывает зону гостинной-столовой, мастер-спальню и детский блок. Но не спешите радоваться такой оптимизации планировки. Такие дома со временем обрастают сараями, гаражами и т.п. Дом Мойдодыр 4 содержит хотя бы некоторый набор помещений для реальной жизни за городом и строительство дополнительных построек может вообще не понадобится.   За 20-летнюю практику проектирования и строительства частных домов случаев, когда получалось применить готовый проект, можно посчитать по пальцам одной руки. Чаще всего это определялось земельным участком, расположением соседних домов, подъездом к дому, предполагаемым видом из окон.   Другим фактором кастомизации являются представления заказчиков о своём доме. Представления эти весьма переменчивы, особенно у тех, кто строится в первый раз и ориентируется на опыт жизни в квартире.   Возможно, приведённые примеры проектов кому-то понравятся в их первозданном виде. Тогда только построить останется. Кому-то понравятся отдельные планировочные решения из этих проектов. А для кого-то мы вместе спроектируем дом его собственной мечты.